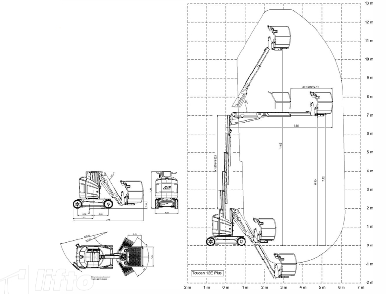
Podnośnik masztowy JGL Toucan 12 E Plus
- Wysokość robocza: 12,65 m
- Wysokość platformy: 10.65 m
- Wysokość w pozycji złożonej: 1,99 m
- Długość w pozycji złożonej: 3,65 m
- Szerokość maszyny: 1,20 m
- Platforma długość x szerokość: 0,70 x 1,0 5 m
- Wysięg boczny: 6,05 m
- Zdolność jazdy na wzniesieniu: 25 %
- Ciężar: 4900 kg
- Udźwig: 200 kg
Podnośnik masztowy JGL Toucan 12 E Plus
Podnośnik masztowy JLG Toucan 12E Plus to profesjonalne urządzenie przeznaczone do pracy na wysokościach do 12,65 m, które łączy w sobie wydajność, bezpieczeństwo i komfort użytkowania. Wyposażony w elektryczny napęd, pozwala na precyzyjne manewrowanie nawet w ciasnych i trudno dostępnych przestrzeniach, co czyni go idealnym do zastosowań wewnątrz budynków.
Udźwig podnośnika wynoszący 200 kg umożliwia jednoczesną pracę dwóch osób z narzędziami, zapewniając stabilność i wygodę podczas wykonywania zadań serwisowych, montażowych i konserwacyjnych. Kompaktowa konstrukcja, intuicyjne sterowanie oraz solidna, stabilna platforma sprawiają, że JLG Toucan 12E Plus jest niezastąpionym sprzętem dla firm poszukujących efektywnego i bezpiecznego rozwiązania do pracy na wysokości.



